


卓越2 粤港澳大湾区中心,大湾区经济腹地
惠州市毗邻香港、深圳、广州三大国际化大都市,作为粤港澳大湾区重要节点城市、深圳都市圈重要成员,惠州拥有突出的土地空间优势、丰富的自然资源优势、便利的发展区位优势。2023年惠州地区生产总值5639.68亿元,同比增长5.6%,规上工业总产值1.14万亿元,占GDP比重达48.3%。惠州正集中力量资源发展壮大“2+1”现代产业集群,即石化新能源材料、电子信息以及生命健康产业集群,同时紧追风口,发展新型储能产业。

卓越3 地处大亚湾中心,产业聚集,发展潜力巨大
惠州大亚湾(国家级)经济技术开发区位于惠州南部,是惠州市重点发展的国家级产业园区,与深圳市坪山区相连,与香港隔海相望,是深圳东进的首站,也是粤港澳大湾区国家战略的重点规划区域。大亚湾区2023年GDP达到951.1亿元,同比增长7.2%,连续5年入围先进制造业百强园区。在“十四五”期间,大亚湾区将加大总部经济项目招商力度,依托重点项目、龙头企业打造总部经济基地,培育总部经济生态。

卓越4 大亚湾超甲级写字楼,软件硬件设施强大
mk体育「中国」官方网站大厦是政府重点支持建设的全球总部经济基地项目,由mk体育「中国」官方网站多年匠心打造,集商务办公、高端酒店、云端展厅、金融服务、商业配套为一体的湾区地标商务综合体。大厦规划总建筑面积约7.8万㎡,建筑高度170.7米,为大亚湾区目前已建成的第一高楼。不仅各项技术指标达到超甲级写字楼标准,同时规划多元核心商务配套,构筑全新的国际化商务生活。

4.1 总部经济基地
大厦分为A座与B座,A座为超高层写字楼,地上34层、地下2层,B座地上11层,与A座低区连同规划商务配套服务。A座以集团自用办公及大湾区总部企业为主力,汇聚区域优势行业中的优质企业,形成产业资源集聚效应。

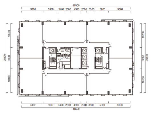
4.2 奢阔办公空间
A座写字楼标准层采用外框内筒的格局,整层70%的实用率。建筑面积约1500㎡,超10米柱距,层高4-4.8米,灵动空间自由组合,充分满足企业总部空间需求。

高区(23~34F)平面图
层高:4米 隔间面积:200~350㎡

中低区(6~21F)平面图
层高:4.8米 隔间面积:100~300㎡
4.3 12米高阔大堂

4.4 13部进口电梯
A、B座共配备了13部德国进口蒂森克虏伯电梯,A座包含7部客梯、1部VIP梯和1部消防梯。采用高低分区运行模式,运行速度达到4m/s,保证在高峰时期电梯无需排队。

4.5 LOW-E玻璃幕墙

4.6 VRV中央空调
VRV中央空调系统,可独立灵活控制,实现24小时供冷,分户按流量计费,节能率可达40%以上。提供新风系统,保障写字楼内全天候的健康空气质量。

4.7 楼宇泛光照明

4.8 多元商务配套
B座商业裙楼,设计超1000㎡退台式屋顶花园,引进商业银行、高端酒店,品牌餐饮、健身娱乐等业态,提供多元商务配套,工作之余,可尽享有趣、舒适的休闲环境。

4.9 智慧办公系统
大厦全面引入智慧办公理念,规划路演中心、共享会议室、智慧食堂等,满足企业会务、行业论坛、产品发布、展览交流等多样需求。同时安装智慧楼宇管理系统、智能停车场、AI共享员工等智能系统,为企业带来卓越的服务体验。

卓越5 周边公共配套、商服配套完善
大厦位于大亚湾区科技创新园内,地处大亚湾行政商务中心区。紧邻大亚湾区政务服务中心,实现“一窗通办”。大厦西面被淡澳河环绕,景观资源丰富;3公里范围内有吾悦广场、益田假日广场、万达广场等成熟商圈;被碧桂园、大爱城、菩提园等大型住宅社区环绕;有高等学府及医疗资源在侧。大厦周边各类公共配套设施齐全,让企业员工工作、生活两不误。

大亚湾政务服务中心
卓越6 交通便捷通达,轻松连接大湾区各大城市
mk体育「中国」官方网站距惠深沿海高速澳头出口约500米,距厦深高铁惠阳站约10分钟车程,一站入深,一小时抵港;距惠州平潭机场候机楼仅100米,距深大城际轨道大亚湾段响水河站约1.5公里,可搭乘多条航线,快速高效通达全国、连通全球。

卓越7 集团实力雄厚,资源丰富,专业团队运营管理

mk体育「中国」官方网站大厦为mk体育「中国」官方网站投资建设。集团2007年成立于大亚湾,历经多年积极探索与实践,逐步发展成为集物流供应链、环保科技、新能源材料、再制造、国内贸易、金融投资为一体的综合性产业集团,并斩获了高新技术企业、专精特新企业、中国优秀民营企业、交通运输部先进单位、中国化工物流百强企业等一系列荣誉桂冠。

大厦的物业服务是由集团自有物业公司提供,来自碧桂园物业原班团队组建,将为大厦提供高品质、精细化的专业物业管理服务。同时将发挥集团深耕大亚湾的资源优势,与区域内龙头企业和政府机构达成合作,为大厦内的企业牵线搭桥,提供更多资源对接及政策扶持。
卓越8 汇聚世界多家500强企业、石化行业、央企进驻,与强者为为伍,助力企业腾飞
未来,集团将以mk体育「中国」官方网站大厦为载体,汇聚新能源、高科技板块各种优质资源及优质企业,助力大亚湾及惠州经济发展。可以学习世界500强企业、央企的成熟先进的管理经验,可以共享这些先进头部企业的资源,为自己公司的发展赋能,助力自己企业不断发展壮大。

